1. Thông tin sản phẩm:
Do đặc thù của dàn nóng phải được lắp đặt phía bên ngoài như ban công, hông tường…nên cục nóng bắt buộc phải được cố định vị trí nhờ các giá treo tường điều hòa dọc. Chúng tôi xin phép được cung cấp một số thông tin liên quan đến sản phẩm như sau:
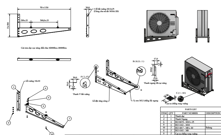
| CHỦNG LOẠI |
KÍCH THƯỚC ( mm) |
KT LỖ CHÂN | LOẠI LỘ | PHỤ KIỆN |
| Giá treo tướng ngang | 1150x500 | 580 ( +- 35 ) | M12 | CAO SU, BU LÔNG, ỐC VÍT |
2. Đặc điểm sử dụng:
- Giá treo tường điều hòa dọc cần đảm bảo được tính an toàn, bền bỉ, chắc chắn cần thiết để không gây nguy hiểm cho môi trường sống xung quanh.
- Giá treo tường điều hòa dọc thường đước lắp đặt ở ban công chung cư để hạn chế dòng khí nóng do dàn nóng thải ra.
3. Vật liệu màu sắc:
- Giá treo tường điều hòa dọc được cấu thành và hoàn thiện trên nguồn nguyên vật liệu và quá trình sản xuất đạt chuẩn Việt Nam và quốc tế.
4. Thông tin bảo hành:
- Giá treo tường điều hòa dọc đều được bảo hành 24 tháng
5. Liên hệ mua hàng:
- Cửa hàng: Số 10 ngõ 232 phố Trần Điền, phường Định Công, quận Hoàng Mai, Hà Nội
- Tài khoản ngân hàng: 19036956859013 Techcombank CN Trần Điền
- Hotline đặt hàng/ tư vấn: 0934569491
- Zalo: 0934569491


Xem thêm