1. Thông tin sản phẩm:
Giá treo trần đôi dàn nóng điều hòa là một sản phẩm mới thuộc hạng mục vật tư điều hòa. Muc đích chính của giá đỡ sàn đôi điều hòa là cố định dàn nóng không bị di dịch trong quá trình vận hành để đảm bảo điều hòa hoạt động một cách êm ái và hiệu quả nhất Chúng tôi xin phép được cung cấp một số thông tin liên quan đến sản phẩm như sau:
| CHỦNG LOẠI |
KÍCH THƯỚC ( mm) |
KT LỖ CHÂN | LOẠI LỘ | PHỤ KIỆN |
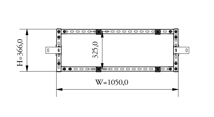
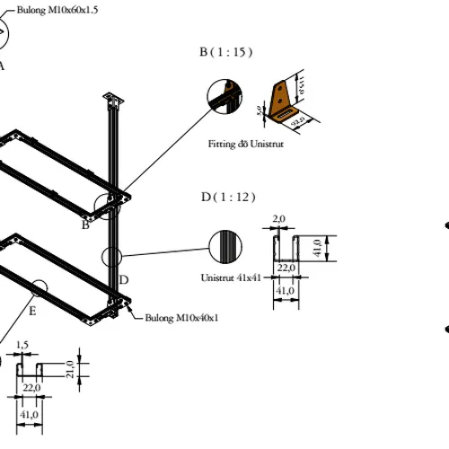
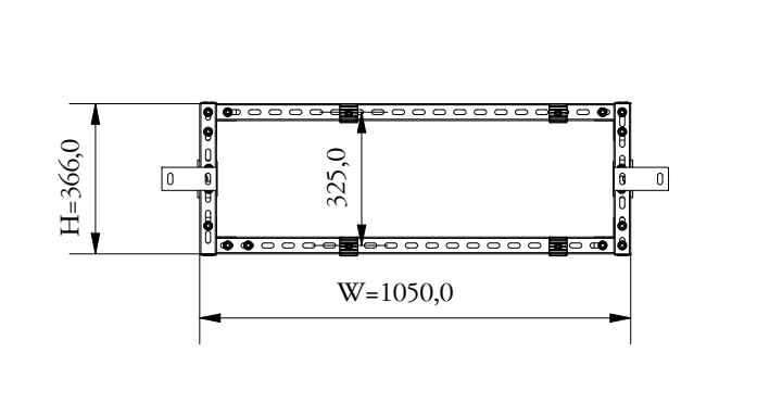
| Giá treo trần đôi | 1050x366xH1721 | Tùy chọn | M12 | CAO SU, BU LÔNG, ỐC VÍT |
2. Đặc điểm sử dụng:
- Giá treo trần đôi cần đảm bảo được tính an toàn, bền bỉ, chắc chắn cần thiết để không gây nguy hiểm cho môi trường sống xung quanh.
- Giá treo trần đôi giúp tối ưu hóa diện tích đặt dàn nóng tại các khu vực nhỏ hẹp như ban công chung cư.
3. Vật liệu màu sắc:
- Giá treo trần đôi được cấu thành và hoàn thiện trên nguồn nguyên vật liệu và quá trình sản xuất đạt chuẩn Việt Nam và quốc tế.
4. Thông tin bảo hành:
- Giá treo trần đôi đều được bảo hành 24 tháng
5. Liên hệ mua hàng:
- Cửa hàng: Số 10 ngõ 232 phố Trần Điền, phường Định Công, quận Hoàng Mai, Hà Nội
- Tài khoản ngân hàng: 19036956859013 Techcombank CN Trần Điền
- Hotline đặt hàng/ tư vấn: 0934569491
- Zalo: 0934569491



Xem thêm