GIỚI THIỆU VỀ VAN NGĂN CHÁY CÁCH NHIỆT STARDUCT.
Các cấp ngăn cháy cách nhiệt có thể cung cấp: EI 30/45/60/90/120
Van ngăn cháy cách nhiệt (Van EI) của Starduct đã hoàn thành thử nghiệm theo các tiêu chuẩn thử nghiệm qui định trong qui chuẩn kỹ thuật quốc gia về phương tiện PCCC (QCVN 03:2021/BCA), báo cáo thử nghiệm số No. 213.21.KC.NCPCC, và đủ điều kiện đăng ký chứng nhận kiểm định an toàn PCCC cho các dự án theo các qui định của qui chuẩn quốc gia về an toàn PCCC - QCVN 06:2021/BXD.
CẤU TẠO TIÊU CHUẨN.
Cấu tạo tiêu chuẩn theo cấu hình của NSX, phù hợp với cấu hình mẫu đã thử nghiệm theo qui định của QCVN03:2021/BCA.
Cơ cấu điều khiển.
- Đóng mở bằng mô tơ điện Belimo kích hoạt bởi tín hiệu báo cháy.
- Mô tơ và thiết bị điều khiển chuẩn UL của Belimo, Thụy Sĩ dòng xuất Mỹ (US Series).
Cấu tạo vật liệu tiêu chuẩn.
Lớp vật liệu chèn bịt bằng keo chống cháy lan HILTI CP606 trương nở ở nhiệt độ cao có khả năng duy trì ngăn cháy và khói trong 4 giờ.
VAN EI 120 THÂN ĐƠN.
Áp dụng cho van có kích thước tối đa W1200 x H800.
Van ngăn cháy cách nhiệt Starduct EI-120 loại thân đơn.
Van chặn lửa, khói và cách nhiệt Starduct loại vuông (chữ nhật) đơn thân là loại van có 1 cánh duy nhất, kích thước lớn nhất là W1200xH800xL600 (mm) được thử nghiệm thành công khả năng chặn lửa, khói và nhiệt trong 120 phút, với áp suất thử lên đến 1500 Pa theo qui định của qui chuẩn quốc gia QCVN 06:2021/BXD. Cánh và thân van là loại cách nhiệt nhiều lớp kết hợp với khung kim loại. Tại các điểm sung yếu của van được phủ một lớp sơn trương phồng của hãng Hilti, sản xuất tại Đức, có khả năng nở lên gấp 5 lần dưới tác dụng của nhiệt độ (từ 240 độ C trở lên), để hỗ trợ van ngăn lửa và khói hoàn toàn trong 4 giờ theo tiêu chuẩn BS 476 mục 20 và BS 476 mục 12. Cơ cấu truyền động sử dụng vòng bi chịu nhiệt của SKF, động cơ Belimo phản ứng nhanh, hệ dùng cho thị trường Mỹ theo tiêu chuẩn UL.
Sản phẩm được sản xuất và hoàn thiện tại nhà máy cơ khí Starduct, trên dây chuyền công nghệ cao, có tính đồng đều và chất lượng đạt chuẩn quốc tế.
Đặc điểm sản phẩm:
- Thân van bằng thép mạ kẽm, dày 1.15mm Cách nhiệt thân van: 10mm + 38mm + 10mm Bic nối ống gió: TDC 32
- Cánh van cách nhiệt : 10mm+38mm+10mm
- Chặn cánh: Thép mạ kẽm + Lá inox chống rò rỉ khí.
- Trục van: Thép tiện CNC, D20 Truyền động : Ổ bi 204
- Tay đẩy cánh van: Thép dày 5mm
- Mô tơ: Mô tơ Belimo, đóng mở 15 giây, có lò xo phản hồi Có tiếp điểm phụ. Model : FSLF-NSA (Made in USA).
- Tiêu chuẩn UL, Bảo hành 5 năm.
Kích thước sản xuất:
Kích thước nhỏ nhất: W300 x H300
Kích thước van ngăn cháy cách nhiệt Starduct EI-120 loại thân đơn
Dải kích thước.
Dải kích thước van ngăn cháy cách nhiệt Starduct EI-120 loại thân đơn.
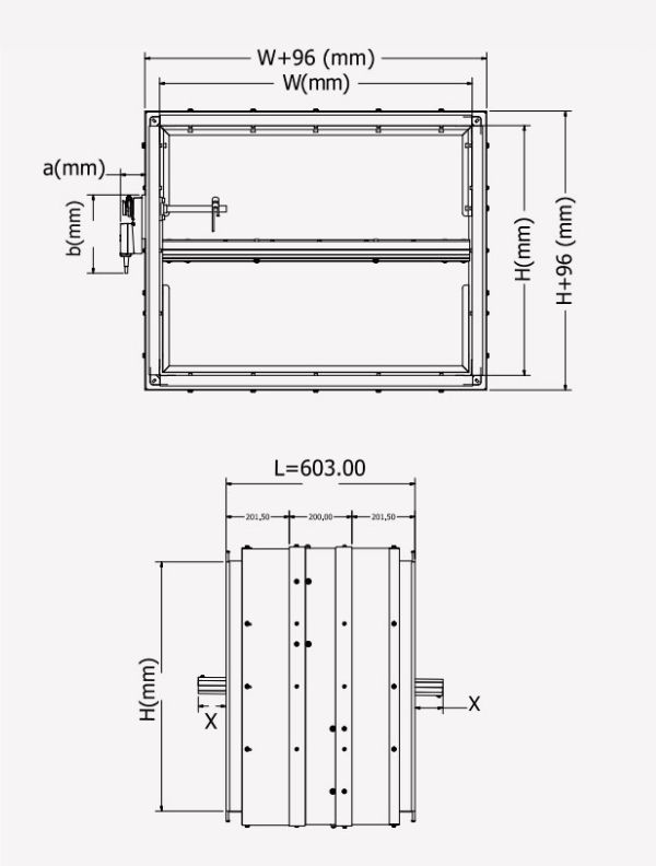
VAN EI 120 ĐA THÂN.
Áp dụng cho van có kích thước tối đa W1200 x H800.
Van ngăn cháy cách nhiệt Starduct EI-120 loại đa thân.
Van chặn lửa, khói và cách nhiệt Starduct loại ổ hợp là loại van kết hợp bởi nhiều van có kích thướ t c nhỏ kiểu modular theo tiêu chuẩn đánh giá mở rộng BS-EN 15882-1:2011, mỗi mô đun trong tổ hợp tương đương một van đơn thân, có đầy đủ chức năng độc lập như một van đơn thân đã trình bày ở trang trước.
Kích thước mô đun lớn nhất trong tổ hợp là W1200xH800xL600 (mm) Cơ cấu truyền động sử dụng ổ bi 204, động cơ Belimo phản ứng nhanh, hệ dùng cho thị trường Mỹ theo tiêu chuẩn UL.
Sản phẩm được sản xuất và hoàn thiện tại nhà máy cơ khí Starduct, trên dây chuyền công nghệ cao, có tính đồng đều và chất lượng đạt chuẩn quốc tế.
Đặc điểm sản phẩm.
- Thân van bằng thép mạ kẽm, dày 1.15mm
- Cách nhiệt thân van: 10mm + 38mm + 10mm
- Bic nối ống gió: TDC 32
- Cánh van cách nhiệt: 10mm+38mm+10mm
- Chặn cánh: Thép mạ kẽm + Lá inox chống rò rỉ khí.
- Trục van: Thép tiện CNC, D20
- Truyền động: Ổ bi 204
- Tay đẩy cánh van: Thép dày 5mm
- Mô tơ: Mô tơ Belimo, đóng mở 15 giây, có lò xo phản hồi
- Có tiếp điểm phụ. Model: FSLF-NSA (Made in USA).
- Tiêu chuẩn UL, Bảo hành 5 năm.
Kích thước sản xuất.
Kích thước van ngăn cháy cách nhiệt Starduct EI-120 loại đa thân.
Dải kích thước.
Dải kích thước van ngăn cháy cách nhiệt Starduct EI-120 loại đa thân.
CÁC VỊ TRÍ LẮP ĐẶT VÀ BIỆN PHÁP LẮP ĐẶT TIÊU CHUẨN CỦA VAN NGĂN CHÁY KHÔNG CÁCH NHIỆT (VAN E) STARDUCT.
Lắp trong tường: Kiểu van đối xứng - L600 (mm).
Van ngăn cháy cách nhiệt Starduct lắp trong tường.
Lắp trên tường: Kiểu lắp đặt không đối xứng - L210 (mm).
Van ngăn cháy cách nhiệt Starduct lắp trên tường.
Lắp ngoài tường: Kiểu lắp đặt không đối xứng - L210 (mm).
Van ngăn cháy cách nhiệt Starduct lắp ngoài tường.
VAN EI TRÒN.
Van EI tròn là một loại van ngăn cháy cách nhiệt có cấu tạo rất phức tạp và đắt tiền.
Van ngăn cháy cách nhiệt Starduct EI 90 loại tròn.
Ngoài việc phải đáp ứng đầy đủ các yêu cầu của qui chuẩn kỹ thuật quốc gia đối với phương tiện PCCC, nó còn phải có cấu tạo phù hợp để lắp đặt thuận lợi, kết nối được với đường ống tròn.
Ngôi Sao Châu Á đã nghiên cứu, chế tạo và thử nghiệm thành công van EI tròn với đường kính lớn nhất.
Van sử dụng động cơ điện hoặc cầu chì nhiệt, đóng bằng lò xo kéo.
Đặc điểm sản phẩm.
- Thân van bằng thép mạ kẽm, dày 1.15mm
- Cách nhiệt thân van: 10mm + 38mm + 10mm
- Bic nối ống gió: TDC 32
- Cánh van cách nhiệt: 10mm+38mm+10mm
- Chặn cánh: Thép mạ kẽm + Lá inox chống rò rỉ khí.
- Trục van: Thép tiện CNC, D20
- Truyền động: Ổ bi 204
- Tay đẩy cánh van: Thép dày 5mm
- Mô tơ: Mô tơ Belimo, đóng mở 15 giây, có lò xo phản hồi
- Có tiếp điểm phụ. Model: FSLF-NSA (Made in USA).
- Tiêu chuẩn UL, Bảo hành 5 năm.
Kích thước sản xuất.
Kích thước nhỏ nhất có thể thực hiện: D200
Kích thước van ngăn cháy cách nhiệt Starduct EI 90 loại tròn.
Dải kích thước.
Dải kích thước van ngăn cháy cách nhiệt Starduct EI 90 loại tròn.
CÁC LƯU Ý QUAN TRỌNG TRONG VIỆC LẮP ĐẶT VAN NGĂN CHÁY CÁCH NHIỆT (VAN EI) STARDUCT.
- Tuyệt đối tuân thủ các hướng dẫn lắp đặt đã được chỉ định trong hồ sơ sản phẩm và thiết kế đã phê duyệt.
- Hướng dòng: Xem chỉ thị trên thân van
- Loại bỏ tất cả các vật không thuộc thành phần của van ở trong van và các và ống liền kề (nếu có).
- Đảm bảo cánh van đóng 100% trước khi lắp đặt,
- Kiểm tra và đảm bảo rằng van có thể vận hành đóng/ mở bình thường.
- Tuân thủ khoảng cách an toàn đối với các yếu tố xây dựng khác. Đảm bảo khoảng trống để vận hành van với khoảng cách tối thiểu 200 mm xung quanh van.
- Đảm bảo việc có thể tiếp cận được van để tiến hành bảo trì, bảo dưỡng trong quá trình sử dụng.
- Lịch bảo dưỡng định kỳ: 6 tháng 1 lần - Kiểm tra nguồn điện/ Đóng/ Mở và vệ sinh.
- Cấp độ kín khí sẽ được duy trì nếu van được lắp đặt theo đúng nguyên tắc lắp đặt.
Việc lắp đặt van chặn lửa trong các công trình xây dựng sẽ được kiểm định theo QCVN06: 2021 / BXD. Các kết quả đạt được là một trong những cơ sở để đánh giá, kết luận và nghiệm thu đưa vào sử dụng. Các kết quả thử nghiệm của NSX chỉ phù hợp với các công trình có cấp chống cháy, kết cấu bằng hoặc thấp hơn cấp đã thử nghiệm.
*** Thông tin chi tiết: Xem hoặc tải về.
Email: mepco.vn@gmail.com
Đ.c: số 10 ngõ 232 Trần Điền, Định Công, Hoàng Mai,Hà Nội.
 
















 
                                     
                                     
                                     
                                     
                                     
                                     
                                     
                                    
Xem thêm